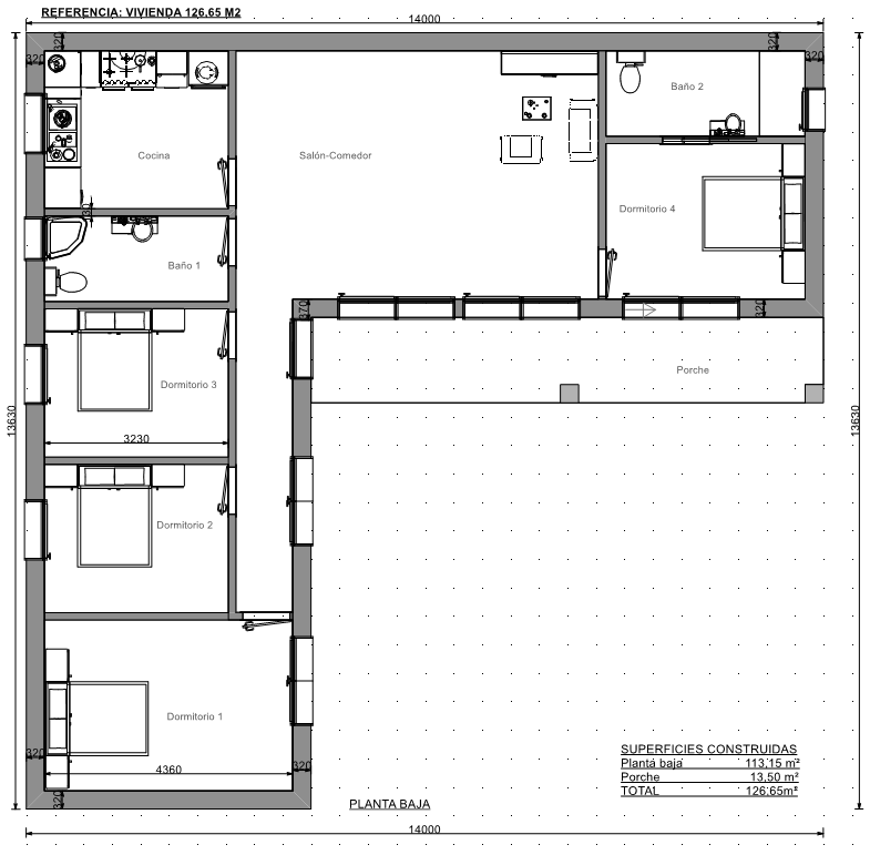
Casa prefabricada en L Superficie construida126m2, con 4 dormitorios, cocina, salón, 2 baños y porche.
Una vivienda prefabricada VME en forma de L hace posible que todos los grandes espacios de la vivienda vuelquen de forma directa con la zona exterior.
Un un modelo de casa prefabricada en L perfecto para parcelas alargadas, con mucho fondo o mucha fachada a la calle.
El diseño de las casas prefabricada en L permite delimitar a la perfección las áreas sociales y las más íntimas en dos secciones.
Gracias a su forma en L, esta casa prefabricada pueden generar espacios exteriores más íntimos y privados, que se pueden aprovechar para instalar piscinas, terrazas o porches. Estamos ante una vivienda prefabricada hecha con materiales de construcción, respetuosa con el medioambiente.
Construir casas prefabricadas de alta calidad depende, entre otras cosas, del uso de técnicas y materiales respetuosos con el medioambiente durante el proceso de construcción.
Si hay un material de construcción sostenible que ha acompañado a la humanidad a lo largo de su historia ese ha sido la madera.
En viviendas VME le da gran importancia al espacio y a los materiales ecológicos.
Personalizamos cada vivienda prefabricada, cada modelo adaptándolo a los gustos y necesidades de cada cliente.
También podemos colaborar con su arquitecto, prestando todo el apoyo necesario para desarrollar el proyecto más óptimo basado en sus ideas.


Visite nuestra pagina Facebook Construcción de Viviendas VME No te pierdes nuestras novedades sobre las casas prefabricadas que construimos.