Se trata de una casa prefabricada de alta calidad construida en Madrid en 2019.
El estilo de esta casa prefabricada se caracteriza por sus líneas limpias de hormigón, con un punto rústico la buhardilla, aunque de líneas modernas.
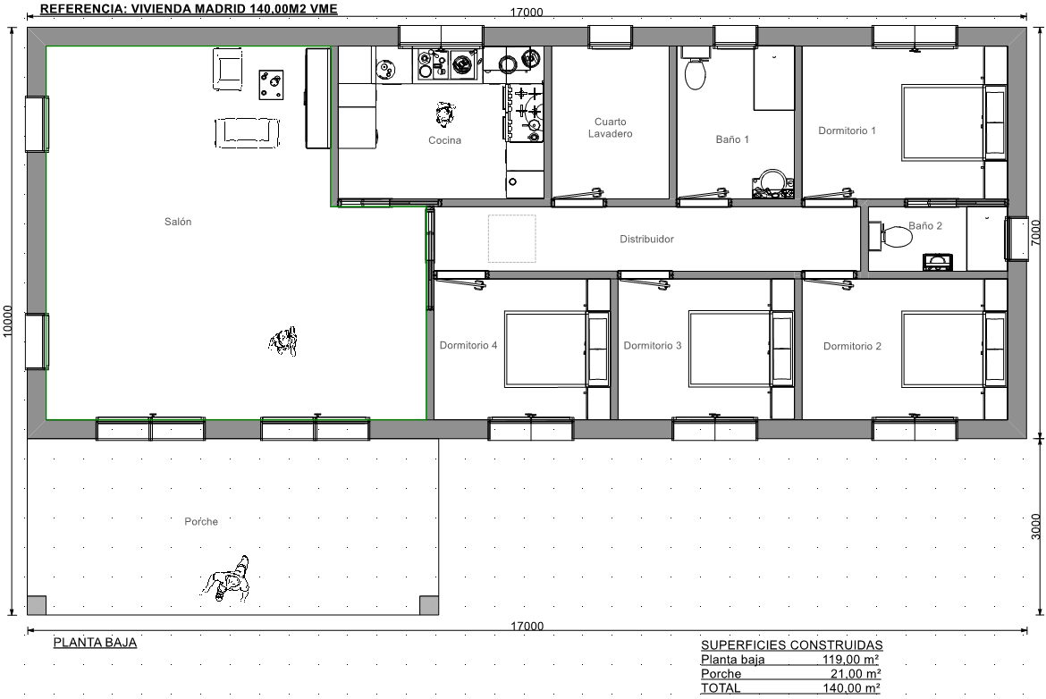
Diseño moderno de esta vivienda prefabricada acabada en hormigón de 4 dormitorios 2 baños y techo a 2 aguas aislado y ventilado, presume de ser l a más eficiente y sostenible.
La casa prefabricada cuenta con una buhardilla para un trastero, una sala de juegos o ambas cosas.
Y como en todas nuestras casas prefabricadas de alta calidad, podrás elegir la distribución que prefieras para que la sientas un poco más tuya.
La cubierta inclinada aporta a las casas prefabricadas calor en invierno y frescor en verano
Esta vivienda prefabricada complementa a la perfección la vida del trabajador moderno, elegante fachada de hormigñon con las comodidades esenciales en el interior.
Aislamiento térmico de la casa prefabricada y ventilación hacen que se asegure que la energía que se pierde a través de la cubierta inclinada sea mínima.
Descubre nuestras construcciones prefabricadas modernas, precios de casas prefabricadas en oferta y ventajas ademas de otras muchas facilidades de pago.
Todas las casas prefabricadas VME son con fachadas de hormigón.


Visite nuestra pagina Facebook Construcción de Viviendas VME Ver modelos y fotos de casas prefabricadas en construcción en Madrid y toda España.