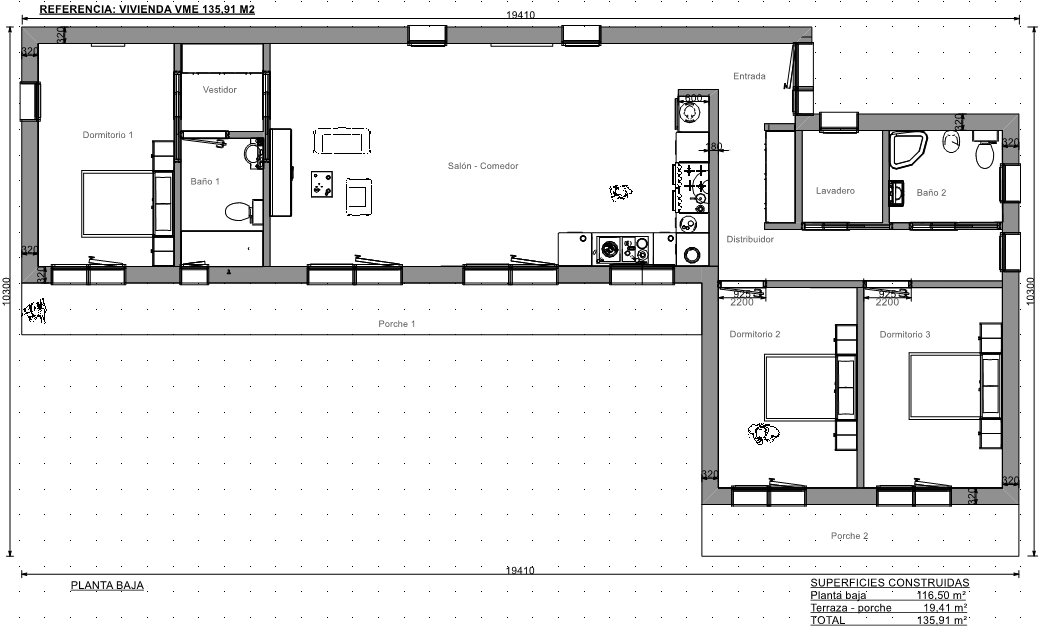
Superficie construida 135,19m2 con 3 dormitorios, vestidor, 2 baños, salón, cocina, lavadero y porche.
Casas pasivas, chalets y casas prefabricadas modernas, es un aval que garantiza su calidad.
Garantia de pagos, Confort y eficiencia energética.
Este modelo de casa prefabricada se pueden personalizar para satisfacer las necesidades de los compradores.
Incluido en el precio diseño de la vivienda a medida, anteproyecto estructural y cálculo de estructura de la casa prefabricada que transmite a las cimentaciones.
Esta vivienda prefabricada unifamiliar, ubicada en una prestigiosa zona de Moncada Valencia está diseñada prácticamente a medida.
Es una casa prefabricada especial, una unifamiliar con un estilo muy personal. Y una implantación excepcional.
La casa prefabricada se encuentra sobre una parcela con cierto desnivel y preciosas vistas.
Nada más cruzar la puerta de entrada a la vivienda prefabricada de alta calidad, nos recibe un amplio patio inundado de luz natural.
¿Como Trabajamos en Construcciones de viviendas VME?
Para más información respecto a la calidad constructiva, consulte Sistema constructivo Viviendas VME de las casas prefabricadas pasivas marca © Viviendas VME.
Ventajas Viviendas VME:
Construimos chlates de madera, casas modernas, casas prefabricadas, casas pasivas con carácter. Cada modelo de vivienda prefabricada se puede personalizar según sus expectativas.
Para que encuentres la casa prefabricada que mejor se adapte a tus necesidades.


Visite nuestra pagina Facebook Construcción de Viviendas VME No te pierdes nuestras fotos de casas prefabricadas y viviendas modernas en construcción.