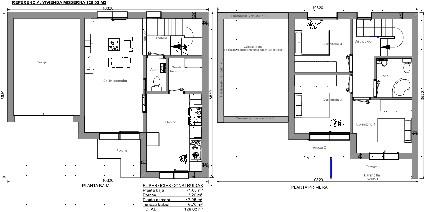
Casas prefabricadas Valladolid – Es un modelo entre medianeras con garaje de 128,02m2 construido.
Es una construcción moderna de alta calidad con fachada de hormigón. Esta casa prefabricada, es una muestra más de una tendencia, huida de las ciudades y el desplazamiento a entornos rurales y provinciales.
Las principales criterios cualitativos de la vivienda prefabricada aislada entre medianeras.
Trasdosado fachada exterior, se mejora la envolvente con sistema SATE para que proporcione las prestaciones térmicas de una casa contemporánea pasiva.
Trasdosados autoportantes de las paredes exteriores, la entreplanta, falso techo descolgado, con PYL (Panel Yeso Laminado).
Suelos, Parquéate flotante calidad AC5, excepto salón, cocina, baños y terrazas que se entregará con pavimento de piezas de gres.
Carpintería exterior de PVC, vidrios triple acristalamiento.
Casas prefabricadas entre medianeras Cumple con la normativa de Casa Pasiva:
Espesores totales de la casa prefabricada entre medianeras:
Pared exterior 320mm, pared interiores: 130, 180, 233mm, entreplantas: 312, 357, 442, 587mm, cubiertas: 360, 415, 442, 565, 682mm.
La estética y la sostenibilidad se combina, creando nuevos estilos con lo mejor de cada una de estas corrientes.


VME en Facebook Construcción de Viviendas VME para ver más casas prefabricadas modernas pasivas en toda España.