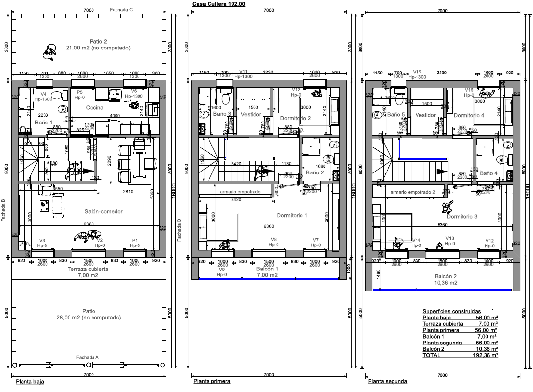
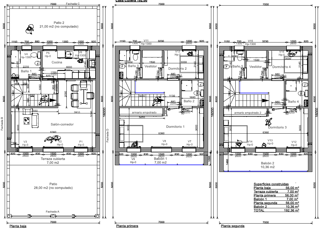
Casas prefabricadas hormigón con terreno – Cullera 192 m2, Valencia
Precio llave en mano a consultar
¿Te imaginas construir tu casa moderna de ensueño prefabricada además pasiva, con acabados de hormigón y mortero de cemento de alta calidad?
Ya sea una casa moderna, una vivienda prefabricada pasiva o una casa de estilo tradicional, hazlo realidad con Viviendas VME.
La marca VME de construcción de viviendas pasivas y casas prefabricadas modernas, es un aval que garantiza su calidad.
Y así nos avalan las más de 460 viviendas hechas con nuestro sistema de construcción mixta de hormigón, acero y madera.
Encantados de atenderte, mándanos tu mensaje a continuación.


Construcción de Viviendas VME en facebook, ver más fotos de viviendas modernas prefabricadas de alta calidad en Valencia y toda España.
Por favor ingrese su nombre de usuario o dirección de correo electrónico. Recibirá un enlace para crear una nueva contraseña por correo electrónico.
