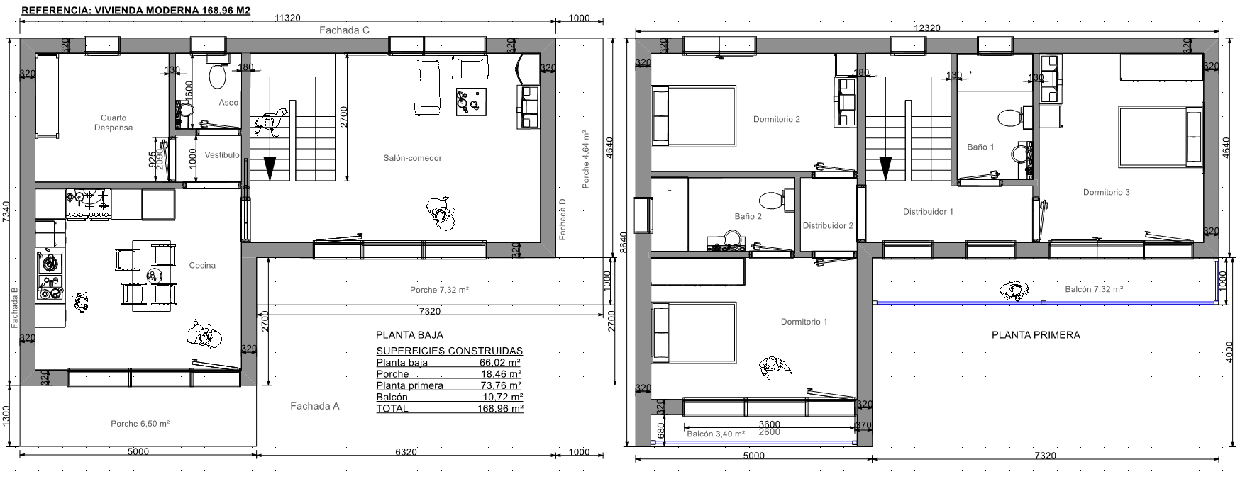
Casas Prefabricadas Madrid – Modelo 168,96 m2 construidos con Precio económico en oferta.
Es una casa prefabricada moderna con fachada de hormigón y cuenta con dos plantas diseñadas mediante volúmenes cúbicos y minimalistas. Un vivienda prefabricada de alta calidad espectacular y no tienen nada que envidiar a las casas de construcción convencional.
Casa prefabricada perfecta para clientes que buscan un diseño moderno en dos plantas, con porche y terrazas para disfrutar en varias zonas de la vivienda. En esta opción, entregamos la casa prefabricada moderna con la teja puesta, fachadas de hormigón. El envolvente de la fachada con sistema SATE y revestimiento en cemento coloreado.
Si lo que busca es un chalet prefabricado acabado en hormigón ó una vivienda pasiva en España,
tenemos una amplia gama de diseños a su medida.


VME en Facebook Construcción de Viviendas VME para ver más casas prefabricadas modernas pasivas en construcción ó ya finalizadas en Madrid y toda España.
Por favor ingrese su nombre de usuario o dirección de correo electrónico. Recibirá un enlace para crear una nueva contraseña por correo electrónico.
