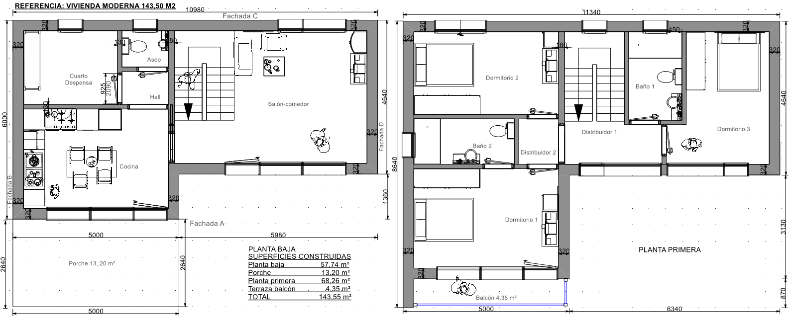
Casas Prefabricadas Modernas Barcelona, modelo VME 143,55m2 construidos.
En esta opción, entregamos la casa prefabricada moderna con la teja puesta, fachadas de hormigón. El envolvente de la fachada con sistema SATE y revestimiento en cemento coloreado.
Espectacular casa moderna y elegante con techos altos, fachada de hormigón y grandes puertas y ventanas.
Es una vivienda prefabricada con aislamientos ideales para casas pasivas modernas prefabricadas o edificios de consumo casi nulo (nZEB).
Carpintería exterior de PVC de alta calidad para casas prefabricadas modernas pasivas.
Cerramientos completos modernos de la casa prefabricada exteriores, interiores que reduce las fuerzas sísmicas de la casa prefabricada y aumenta la protección frente al fuego.
Vivienda Barcelona cuenta con 3 dormitorios, 2 baños, 1 aseo, salón, cocina, cuarto…


VME en Facebook Construcción de Viviendas VME para ver más casas prefabricadas modernas pasivas en construcción ó ya finalizadas en Barcelona y toda España.
Por favor ingrese su nombre de usuario o dirección de correo electrónico. Recibirá un enlace para crear una nueva contraseña por correo electrónico.
