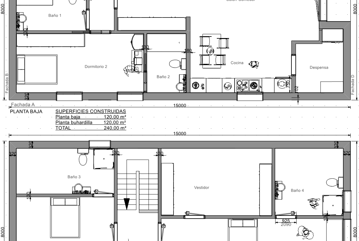
Construida en Navarra, una casa de 240 m2 construidos con 4 dormitorios y 4 baños. Es una vivienda de construcción prefabricada de alta calidad, con fachada acabada en hormigón.
Consulte nuestras Casas prefabricadas Navarra de alta calidad en oferta.
En la planta baja, salón-comedor, dormitorio principal con baño, otro dormitorio y baño general, cocina con despensa.
En la planta primera, dos amplios dormitorios con dos baños, y dos zonas no útiles de la buhardilla que se puede utilizar como trastero…
Podemos modificar la distribución interior de la vivienda prefabricada a su gusto.
Si necesitas una casa prefabricada de alta calidad a medida, contacta con nosotros y se lo haremos realidad a un precio razonable y con facilidades de pago.
El sistema estructural adoptado: La cimentación de hormigón, es una superestructura tipo, losa de cimentación sustentada sobre muros y zapatas corridas bajo muros portantes perimetrales.
La vivienda esta construida, basándose en el sistema de construcción tipo «Ossature Bois» (Francia) de madera maciza y laminada GL24H, OSB3 y acero.
De este modo, se consigue una vivienda prefabricada igual de resistente y sólida que una casa normal, pero con la ventaja de tener una casa sostenible con un aspecto tradicional.
Edificación sismo resistente y Protección pasiva contra incendios con OSB3 (Oriented Strand Board) y PYL (Panel Yeso Laminado) de marca KNAUF ó similar:
En esta opción, entregamos la casa prefabricada con aislamientos ideales para casas pasivas prefabricadas o edificios de consumo casi nulo (nZEB).
Casa prefabricada con la teja puesta, acabado final en fachadas de hormigón con sistema SATE y revestimiento en cemento coloreado. Carpintería exterior de PVC de alta calidad para casas prefabricadas pasivas. Cerramientos en OSB y revestimientos interiores en PYL panel yeso laminado que reduce las fuerzas sísmicas de la casa prefabricada y aumenta la protección frente al fuego.


VME en Facebook Construcción de Viviendas VME para ver más casas prefabricadas en Navarra y toda España.