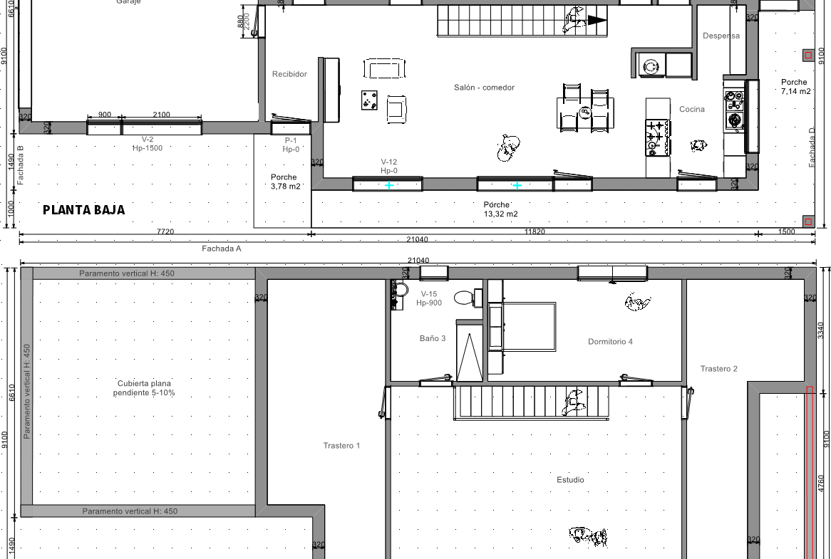
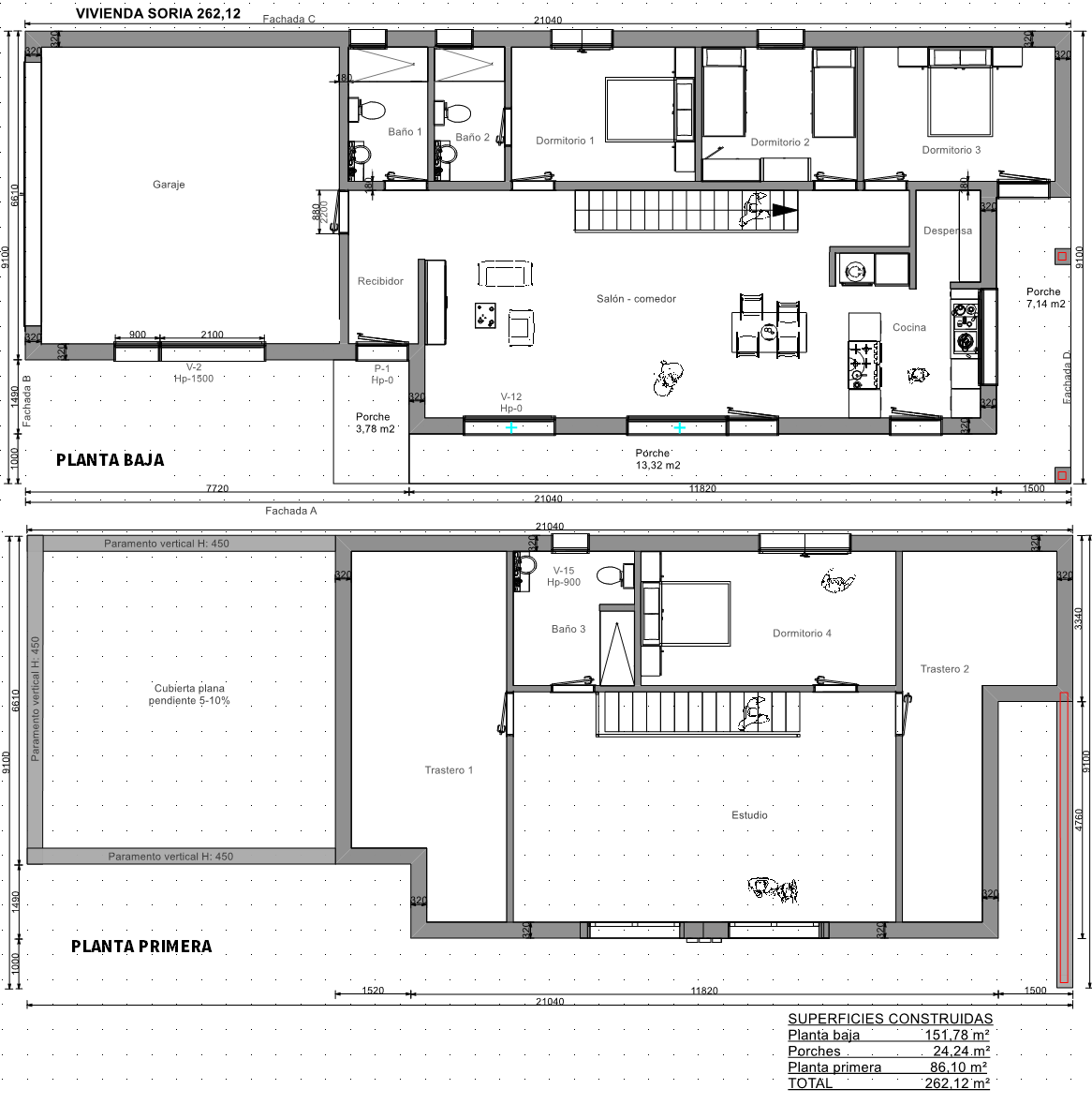
Casas prefabricadas Soria, modelo VME 262m2 construidos. Precio desde 235 204 euros.
El aislamiento de las casas prefabricadas VME con sistema SATE es una excelente solución para sistemas de aislamiento térmico por el exterior.
Mortero de enlucido y revoco a base de cemento para fachadas de las casas prefabricadas pasivas aisladas con sistema SATE.
Las casas prefabricadas VME y la vivienda pasiva modelo Soria 262 m2 destacan por ser elaboradas a base de paneles de madera, OSB y acero, revestidas mortero monocapa
como acabado por encima del hormigón y sistema SATE.
Aislamiento térmico y acústico de alta calidad, aumentando el ahorro energético y aísla acústicamente de la vivienda pasiva prefabricada.
Para resolver las grandes luces de la vivienda pasiva prefabricada y para garantizar la durabilidad de la estructura en condiciones de uso adecuado se utilizará vigas de apoyo de madera laminada GL24h con lo que se sobredimensionan las necesidades que marca la normativa.
Gracias a esta estructura sobredimensionada de la vivienda pasiva prefabricada, obtenemos los parámetros de resistencia mecánica, estabilidad, seguridad, durabilidad y protección pasiva contra incendios, dándonos la seguridad de la aplicación de toda la normativa vigente para este tipo de estructuras.
Gracias a la condición solida y térmica de estos materiales de construcción, en el interior de las viviendas pasivas prefabricadas existen temperaturas frescas y templadas.


VME en Facebook Construcción de Viviendas VME para ver más chalets y casas prefabricadas en Soria, Valencia, Madrid, Barcelona y toda España, de 120 m2, 100 m2, 130 m2, 140 m2, 150 m,2, 200 m2 ó más.