Casas Prefabricadas Valencia modelo 120,96m2.
Es una construcción prefabricada inspirada en el estilo mas tradicional.
Construimos casas pasivas prefabricadas modernas en toda España.
VME es una constructora de viviendas prefabricadas pasivas de alta calidad con doble aislamiento, con fachadas modernas de cemento.
Placas PYL para interiores.
La cimentación de hormigón, sustentada sobre muros y zapatas corridas bajo muros portantes perimetrales.
La vivienda prefabricada modelo Valencia, esta construida, basándose en el sistema de construcción tipo «Ossature Bois» (Francia) de madera maciza y laminada GL24H, OSB3 y acero.
De este modo, se consigue una vivienda prefabricada de alta calidad, con la ventaja de tener una casa sostenible con un aspecto tradicional.
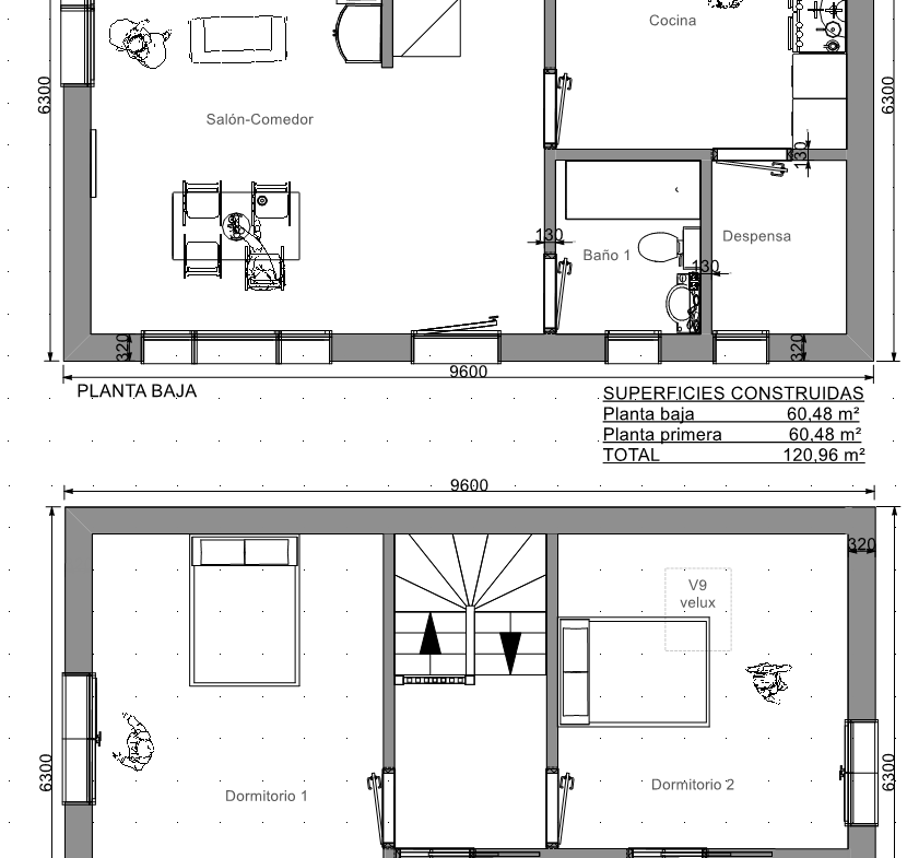
Se distribuye con el concepto de espacio abierto mas actual, y con dos zonas claramente diferenciadas. En la planta baja, salón-comedor, cocina con despensa y un baño general.
En la planta primera, dos dormitorios amplios con dos baños.
Si fuera necesario, podemos modificar esta casa prefabricada a su gusto, a un precio razonable y con facilidades de pago.
En esta opción, entregamos la casa prefabricada con aislamientos ideales para casas pasivas prefabricadas o edificios de consumo casi nulo (nZEB).
Casa prefabricada con la teja puesta, acabado final en fachadas de hormigón con sistema SATE y revestimiento en cemento coloreado.
Carpintería exterior de PVC de alta calidad para casas prefabricadas pasivas.
Cerramientos completos de la casa prefabricada exteriores, interiores que reduce las fuerzas sísmicas de la casa prefabricada y aumenta la protección frente al fuego.
Encuentra tu casa prefabricada de alta calidad que mejor se adapte a tus necesidades.


Visite nuestra pagina Facebook Construcción de Viviendas VME para ver más casas prefabricadas de alta calidad en Valencia, Madrid, Barcelona y toda España.