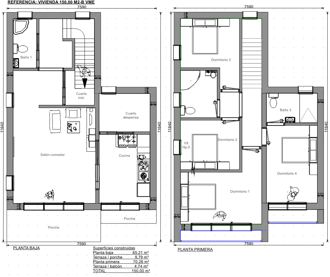
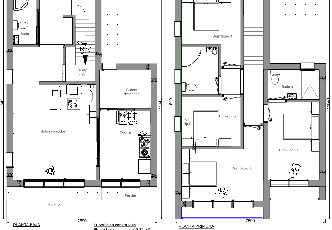
Chalet 150m2 modelo de casa estilo tradicional con fachada de hormigón:
Vivienda moderna prefabricada destaca por su diseño y su amplitud, cuenta con 4 dormitorios…
Con más de dos décadas de experiencia en la construcción de viviendas, VME cuenta con todo lo necesario para ofrecer productos y construcción de calidad y garantizar la satisfacción del cliente.
¿Sabías que con nosotros No pagarás las obras por adelantado?
Cuando construya paso a paso, también podrá gastar su presupuesto paso a paso.
Anteproyecto estructural le sale Gratis!
Un chalet prefabricado moderno con una llamativa fachada como su interior invita a permanecer y dejan una sensación agradable en sus usuarios.
¿No les ha pasado que muchas veces nos llevamos una grata sorpresa cuando entramos en un chalet que esperábamos que fuera diferente por su exterior?
Un chalet donde los luminosos espacios interiores son acogedores.
Las líneas limpias y los hermosos detalles abundan en los interiores de la casa prefabricada moderna…
Construimos chalets de alta calidad y casas prefabricadas.


VME en Facebook Construcción de Viviendas VME para ver más chalets en Barcelona y toda España.
Por favor ingrese su nombre de usuario o dirección de correo electrónico. Recibirá un enlace para crear una nueva contraseña por correo electrónico.
