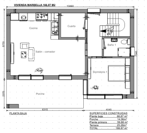
Plano planta baja, Casa moderna Marbella 166,97

  • hace 1 año
  • 0

Comparar listados

Comparar