Construcción de casas precios VME – Alta Calidad con garaje – Tú pones la idea y nosotros el conocimiento y el trabajo.
Son casas modernas acabadas en hormigón de calidad que aportan una sensación de confort térmico durante todo el año y que invitan a ser habitadas y disfrutadas.
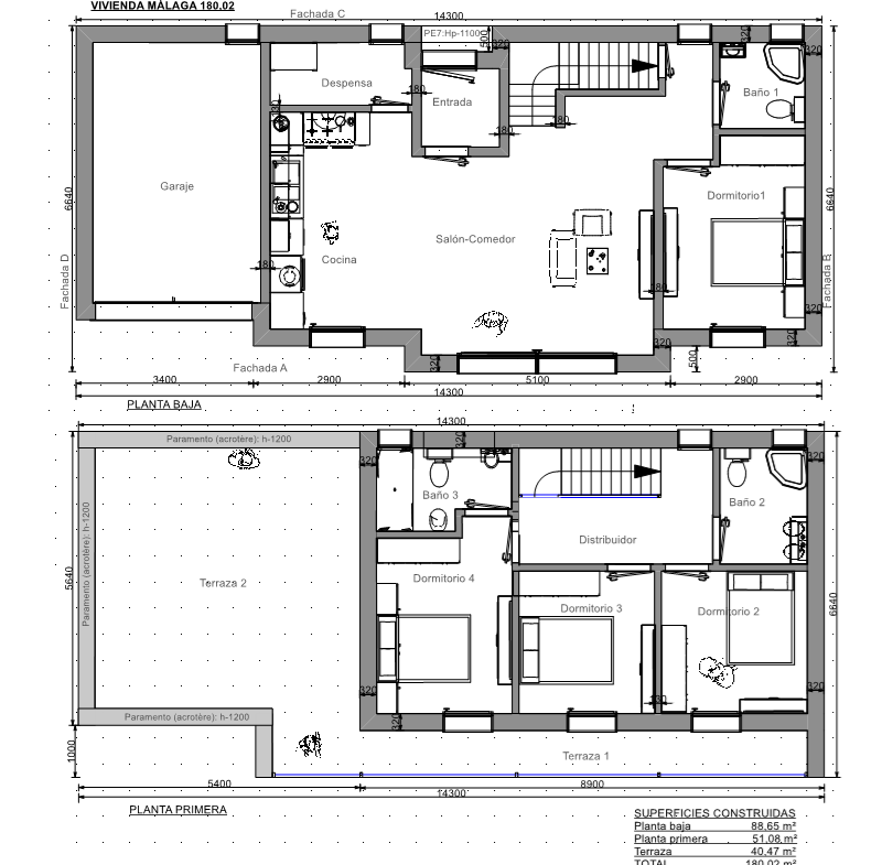
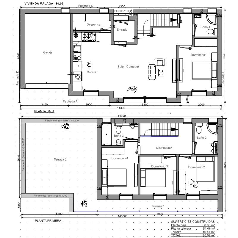
Superficie construida 180 m2 con garaje, cuatro dormitorios, salón comedor, cocina, tres baños y terraza.
Mayor resistencia y rigidez: Se combinan materiales con diferentes propiedades para obtener estructuras más resistentes y rígidas.
Mayor flexibilidad: Se pueden lograr diseños más versátiles y adaptados a las necesidades del proyecto.
Construcción Sostenible
Garantía de Construcción con Facilidades de Pago
Diseñamos y construimos casas a medida
Son casas modernas mixtas que se construye en el situ y prefabricadas industrializadas con doble aislamiento, acabadas con SATE en mortero de cemento, color a elegir.


Construcción de Viviendas VME en facebook, ver más fotos de Construcción de casas precios VME de alta Calidad modernas prefabricadas industrializadas modernas de hormigón y mortero de cemento de alta calidad en Málaga, Madrid, Valencia y toda España.
Por favor ingrese su nombre de usuario o dirección de correo electrónico. Recibirá un enlace para crear una nueva contraseña por correo electrónico.
