Construcción de casas VME – Empresa especializada en la construcción de casas prefabricadas acabadas en hormigón y chalets de alto standing.
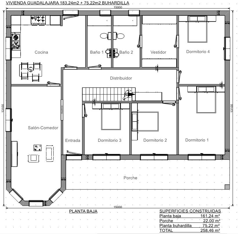
Vivienda prefabricada Guadalajara de 183,24m2 + 75,22m2 buhardilla.
Superficie total construida : 258,48m2
Planta baja: Un dormitorio tipo suite con baño y vestido, 3 dormitorios, 1 baños, salón, cocina, y porche.
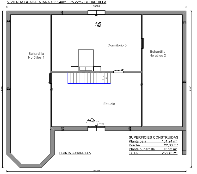
Planta buhardilla:
Un dormitorio, un estudio.
Una de las principales tendencias en las viviendas vme prefabricadas de alta calidad es la integración de prácticas sostenibles y el enfoque en la eficiencia energética.
El diseño paramétrico utiliza algoritmos para generar formas y patrones, mientras que la fabricación digital, como la impresión 3D, permite la construcción de la vivienda prefabricada precisa de estas formas.
Las casas prefabricadas con buhardilla modernas están teniendo cada día más popularidad debido a sus diseños, al espacio y confort que entregan a sus habitantes.
Las tendencias actuales en la construcción de viviendas prefabricadas de alta calidad, reflejan un enfoque en la sostenibilidad, la innovación tecnológica y la adaptación creativa de los espacios existentes.
Una elección inteligente para quienes quieran disfrutar de una vivienda exclusiva y elegante.
Existe la posibilidad de modificaciones a petición del cliente para añadir plazas de garaje o modificar la distribución interior.
Precios y fotos de Viviendas prefabricadas VME de alta calidad:


Visite nuestra pagina Facebook Construcción de Viviendas VME No te pierdes nuestras casas prefabricadas y viviendas pasivas que construimos en Guadalajara y toda España.