Construcción de casas prefabricadas de alta calidad desde cero acabadas en hormigón.
Una vivienda prefabricada moderna construida en Madrid en 2022 con un diseño muy llamativo.
Construimos tu vivienda prefabricada moderna a medida para que puedas hacer de tu sueño un lugar único.
Nos respaldan más de 20 años en el mundo de la construcción de casas prefabricadas de alta calidad.
Construcción de viviendas prefabricadas modernas con cubierta plana y fachadas invertidas ó tipo chalets con cubiertas inclinadas, a elegir.
Elige garantía de pagos y experiencia en construcción de casas prefabricadas de alta calidad
Envíanos tu proyecto de vivienda, cuéntenos su sueño y se lo haremos realidad a un precio razonable y con facilidades de pago.
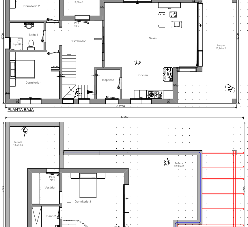
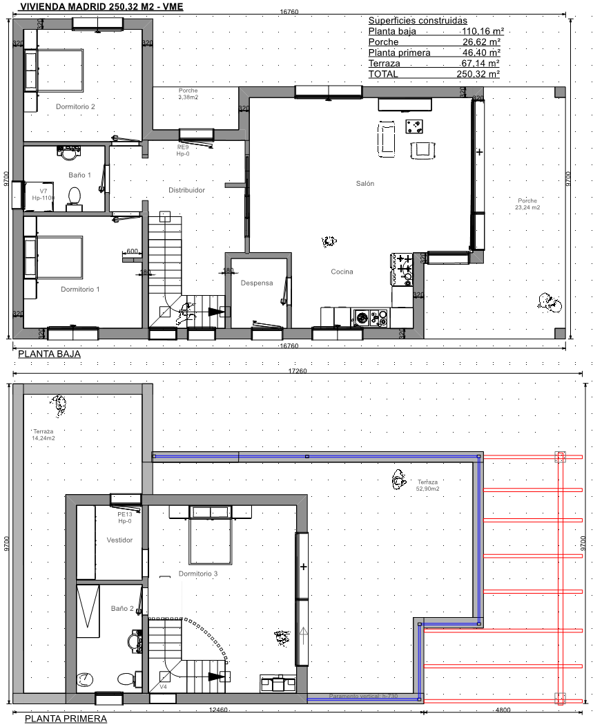
Se configura en dos plantas, con grandes terrazas circundantes que convierten la vivienda prefabricada en una más amplia y con una estética única.
Con un diseño muy pensando y con todas los espacios nobles de la vivienda hacia el porche ño terrazas, que permite disfrutar de un espacio de sombra en el exterior.
Al exterior se genera un volumen limpio contundente con grandes ventanales, sin duda un proyecto de vivienda prefabricada moderna singular.
¿Necesitas ayuda profesional en tu proyecto de construcción de una vivienda prefabricada de alta calidad?
Ponte en contacto con Viviendas VME y estudiaremos tu caso.
Aislamiento térmico estructural de alta calidad con lana mineral de marca KNAUF ó similar Euroclase A1 en interior de las estructuras.
La envolvente de la fachada exterior con SATE, acabado en hormigón y mortero de cemento, ideal para casas pasivas.
Sistema SATE (Sistema de Aislamiento Térmico Exterior) y con calificación A.


Construcción de Viviendas VME en facebook, ver más fotos de viviendas prefabricadas de alta calidad en Madrid y toda España.