Constructora de casas pasivas prefabricadas VME con facilidades de pago.
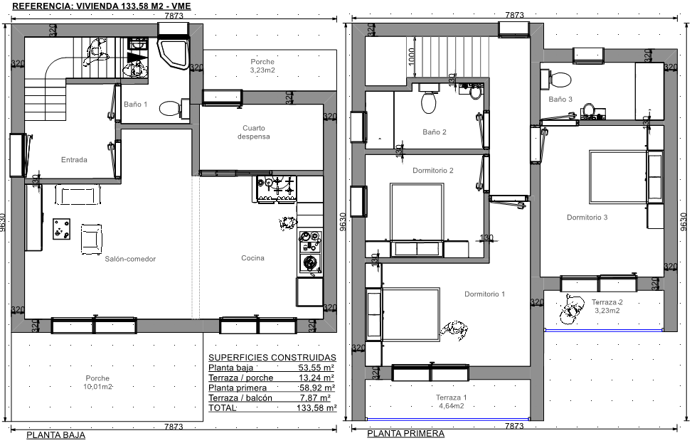
Vivienda pasiva con fachada de hormigón de alta calidad de 133,58m2 con 3 dormitorios y 3 baños.
Aislamiento térmico de las casas pasiva prefabricadas con estructura de madera:
Por sus características naturales, la madera ofrece una baja transmitancia térmica, lo que hace que los elementos estructurales colaboraren con los aislamientos en conseguir muros exteriores de alta eficiencia energética.
Gracias a un espesor considerable de aislamiento térmico, las casas pasivas VME sufren una pérdida de calor muy limitada.
Las necesidades de calefacción de las casas prefabricadas VME aún necesarias son casi nulas.
Puertas y ventanas de las casas pasivas prefabricadas VME:
Carpintería exterior de PVC con Vidrios triple acristalamiento, cumple con la normativa de Casa Pasiva.
La envolvente del edificio VME con Sistema SATE, acabado en hormigñón, es el mejor sistema para eliminar puentes térmicos, acabado final en mortero decorativo Weber.pral prisma ó similar. Según UNE-EN 998-1.
Hablar de envolvente térmica en construcción de casas es habitual si hablamos de eficiencia energética.
La eliminación de los puentes térmicos con esta sistema SATE, permite disminuir las pérdidas de calor de las casas prefabricadas pasivas VME.


VME en Facebook Construcción de Viviendas VME para ver más chalets en Málaga y toda España. Aquí podrás encontrar todos los modelos de casas prefabricadas pasivas VME, chlatets y viviendas cubicas, con estética moderna ó más tradicional, acabadas con hormigón.