Vivienda prefabricada moderna con 4 dormitorios modelo Barcelona 150m2 con fachada de hormigón y grandes ventanas.
Déjate cautivar por Casas prefabricadas modernas VME, impresionantes, con fachada de hormigón y grandes ventanas y encuentra inspiración para tu hogar.
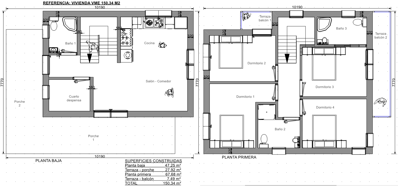
Esta vivienda prefabricada es una construcción minimalista moderna de 2 plantas con 150m2 construidos con excelente relación Calidad Precio.
Es una casa prefabricada con un diseño espectacular construida con estructuras cúbicas modernas, superpuestas en diferente geometría.
Las casas prefabricadas VME son tan duraderas como una vivienda convencional, con excelente aislamiento térmico y acústico, y materiales de alta calidad.
Se ofrecen 3 variantes de este modelo, aparte de esta casa prefabricada moderna de 150,34m2, otra casa más grande de 204,10m2 y una vivienda la más económica de 142,34m2 con 3 dormitorios.
Viviendas con arquitectura moderna que permite la realización de edificaciones únicas y modernas, que se ajustan a las necesidades de los clientes.
Nos adaptamos a todos los estilos de viviendas: Modernas, Contemporáneo, Minimalista, Mediterráneo, Estilo colonial, Estilo rural. La estética y la sostenibilidad se combina, creando nuevos estilos con lo mejor de cada una de estas corrientes.


VME en Facebook Construcción de Viviendas VME para ver más casas prefabricadas modernas pasivas en construcción ó ya finalizadas en Barcelona y toda España.