Confort y habitabilidad, una elección inteligente para quienes quieran disfrutar de una vivienda prefabricada exclusiva con fachadas de hormigón.
Es una vivienda moderna prefabricada de dos plantas, con fachadas de hormigón, construida a medida en Madrid.
Es un modelo de vivienda prefabricada moderna con carácter y personalidad, que destaca por su complejidad en los voladizos.
Vivienda Prefabricada Precios VME: Construcción de alta calidad de 223,34 m2:
La gran versatilidad y posibilidades volumétricas de las cubiertas y de los aleros, permiten una fusión armónica con la propia fachada del edificio.
Lo que posibilita el diseño de terrazas bajo transitables perfectamente integradas con espacios planos.
El interior de la casa, al igual que su exterior, se rige por un estilo puro moderno y sobrio.
El diseño de los espacios, de este modelo de casa moderna prefabricada, se basa en el orden y la funcionalidad.
Tiende a ser un tipo de construcción moderna, donde se utilizan volúmenes geométricos y contornos de líneas limpias y simples, con amplios ventanales.
Casa prefabricada moderna con envolvente de fachada de hormigón, con aspecto de cemento bicolor.
Las diferentes alturas de esta vivienda prefabricada moderna, junto con los acabados exteriores en mortero de cemento coloreado, marcan la diferencia…
Modelo de vivienda prefabricada, perfecto para clientes que buscan un espacio cómodo, sin renunciar a las mejores prestaciones en el hogar.
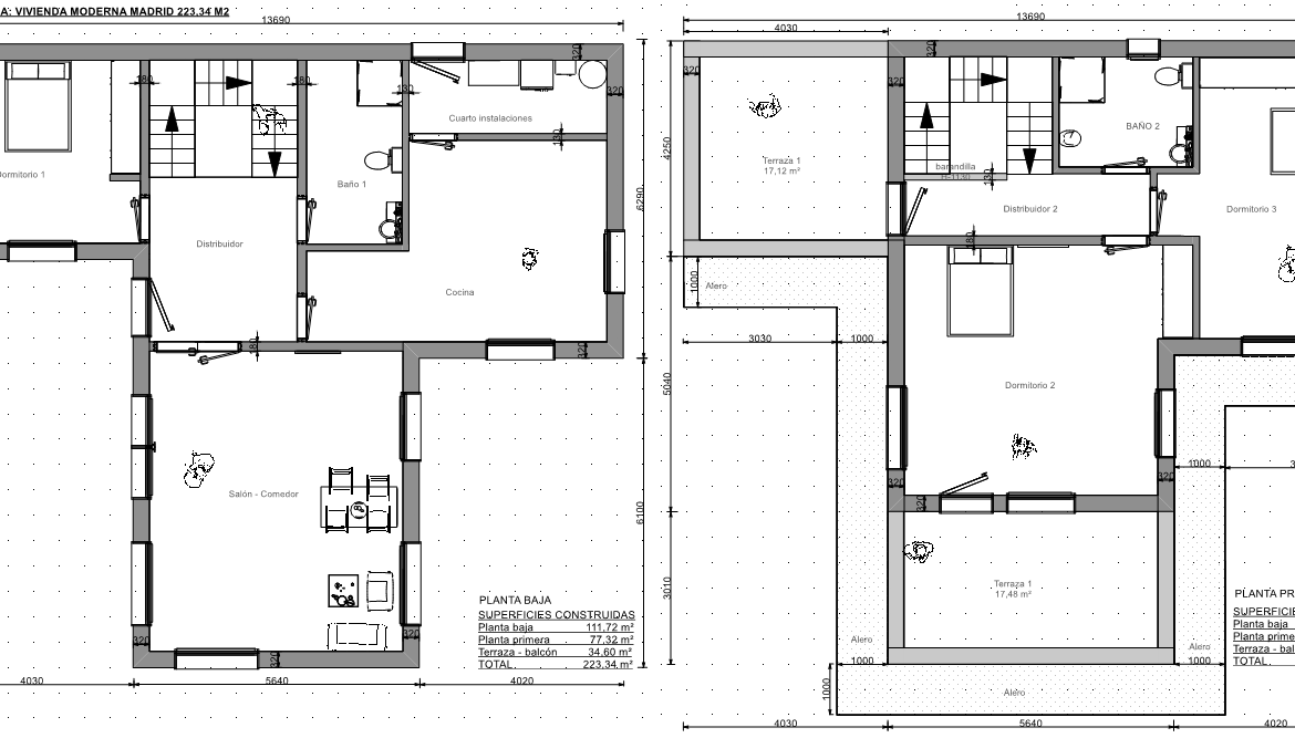
En la planta superior se desarrolla un programa de dos amplios dormitorios con un baño y dos terrazas.
Cabe la posibilidad de crear un baño adicional para que un dormitorio de esta casa moderna sea de tipo suite.
En planta baja, salón comedor con cinco ventanales, cocina, cuarto de instalaciones (despensa).
En el distribuidor encontramos un baño con una habitación al frente multi función (Dormitorio / Studio / Habit. Servicio).
En esta opción, entregamos la vivienda con aislamientos ideales para casas pasivas prefabricadas o edificios de consumo casi nulo (nZEB).
Construimos la casa prefabricada moderna con revestimiento exterior de la cubierta, acabado final en fachadas de hormigón con sistema SATE y revestimiento en cemento coloreado.
Carpintería exterior de PVC cumple con el estándar de casas modernas pasivas. Cerramientos en OSB y revestimientos interiores modernos en PYL panel yeso laminado que reduce las fuerzas sísmicas y aumenta la protección pasiva frente al fuego.


VME en Facebook Construcción de Viviendas VME para ver más casas prefabricadas en Valencia y toda España.