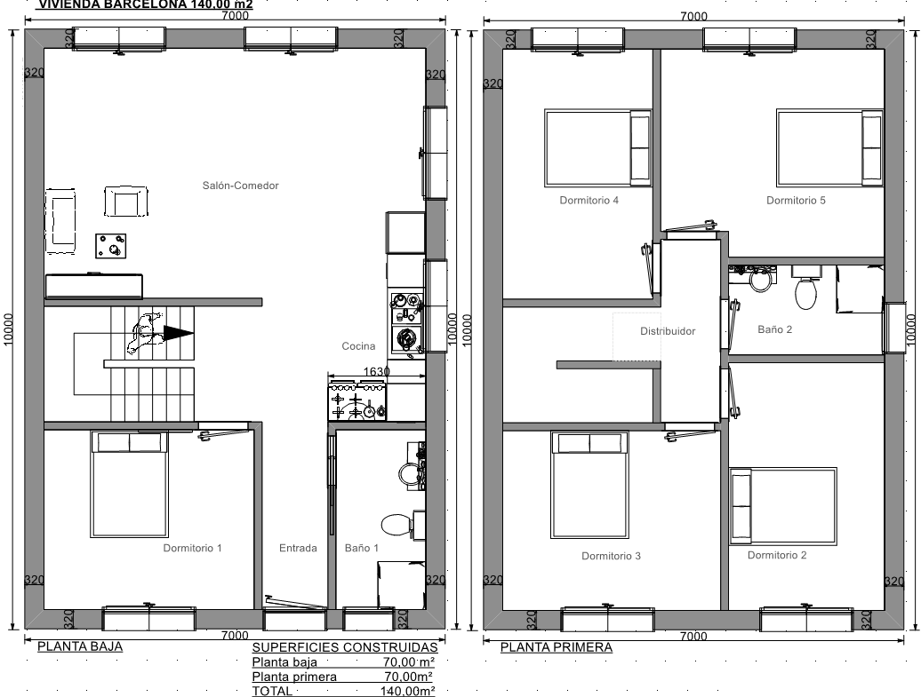
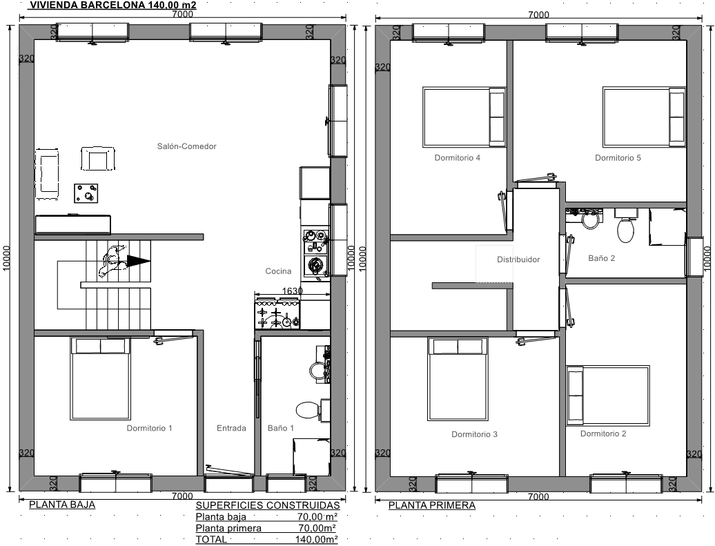
Vivienda unifamiliar Barcelona 140m2 con cubierta plana inclinada y fachadas SATE acabadas hormigón. Su precio es desde 136,379 euros.
Es una casa prefabricada con un diseño muy llamativo, de cuatro dormitorios y dos baños que se organiza en dos plantas.
Diseño de las casas prefabricadas, planos a medida e infografía arquitectónica en 3D le sale gratis.
Documentación gráfica a partir de la concepción de idea general de vivienda prefabricada que la definirá en base a las necesidades.
Permite tener una idea del tipo de vivienda prefabricada.
Anteproyecto estructural de la vivienda sirve como base para realizar el proyecto de ejecución de obra, justifican las soluciones adoptadas, proporciona la imagen global de la casa prefabricada.
Le sale totalmente gratis en el caso de firmar con nosotros el contrato de prestación de servicios, construcción de la vivienda prefabricada.


Construcción de Viviendas VME en facebook, ver más fotos de casas prefabricadas de estilo tradicional ó modernas.
Para más información respecto a la calidad, consulte nuestra Sistema Constructivo VME.
Por favor ingrese su nombre de usuario o dirección de correo electrónico. Recibirá un enlace para crear una nueva contraseña por correo electrónico.
